錬

  • 錬のリノベーション
  • 錬にできること
  • プロジェクトレポート
  • 錬の会社情報
  • ご相談・お問い合わせ

HOME

匠 基本情報
  •  種別
  • リノベーション
  •  プロジェクト
  • Y様邸
  •  所在
  • 練馬区
  •  面積
  • 109.19u
サムネイル01
サムネイル01
サムネイル01
サムネイル01
サムネイル01
サムネイル01
サムネイル01

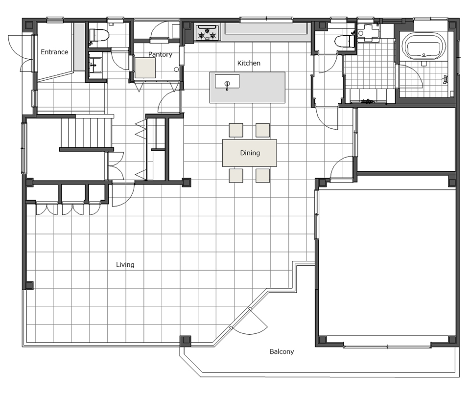
間取り図 サムネイル01

床も壁もキッチンも大理石やタイルを贅沢に使用した水廻り中心のリノベーション。

高級感あふれる内装で、明るく開放的な空間に生まれ変わった。

オリジナル感のあるキッチンは、既製品のキッチンと既製品の収納をあわせ、人大カウンターをコの字にかぶせることで、コストパフォーマンスにも優れたつくりとした。

老朽化により漏水していた配管の交換やバルコニーの防水、パントリーの増築などハード面の施工も併せて行い、見えない部分もきちんとリノベーションさせていただいた。



施工事例一覧
PAGE TOP