|
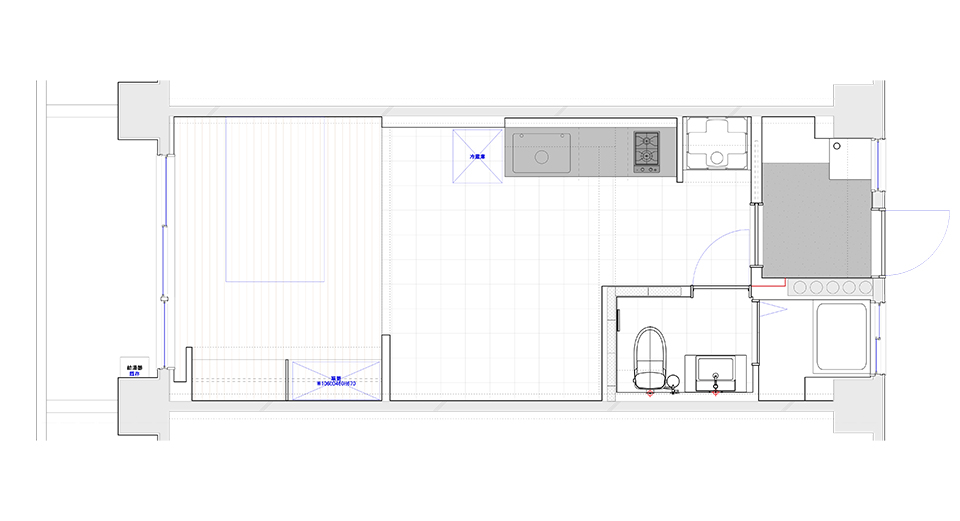
1DKのマンションをStudioタイプにするリノベーションを行った。 築50年を超えるマンションではあるがすでに一度リフォームが行われていた為、浴室に関しては今回の工事では行わずにそれ以外に予算をかけてリノベーションを行った。 当初はご本人が仕事用として使いつつ将来的にはお子さんが一人暮らしをする時に譲られることを想定し細かく間仕切ることをせず1つの空間としてまとめた。玄関を開けてすぐにあったキッチンを居室側に移動させることで玄関土間のスペースを拡充し、共用廊下側からワンクッションを置き室内が丸見えにならないように心がけた。また玄関側は幹線道路に面しているがその騒音を軽減することにも役立っている。 ステンレス天板だけのキッチンは造作で設け、下部の収納についてはお客様にご用意いただき最低限のシンプルなものとしている。 |















