基本情報
種別
フルリノベーション
プロジェクト
H邸
所在
東京都文京区
面積
61.30u
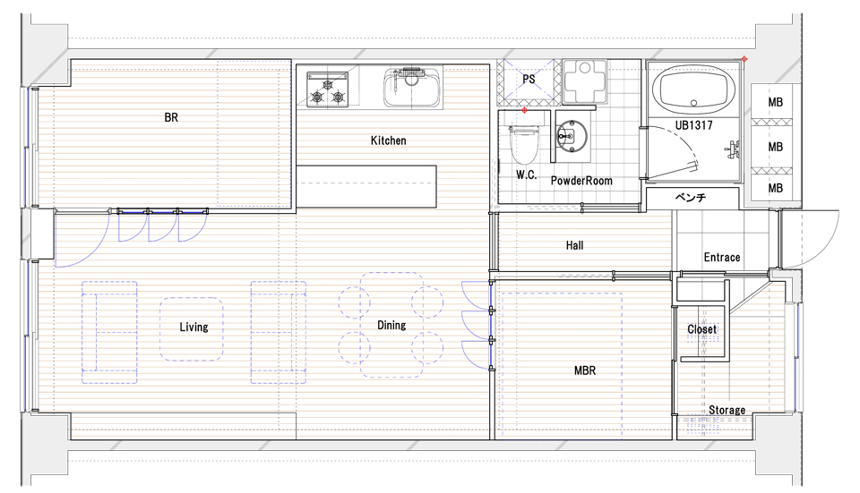
間取り図
3DKのマンションを2LDKへとリノベーションを行った
リノベーション前はダイニングキッチンが無窓の居室だったため非常に暗く陰鬱とした空間だった。 そこで家族構成から不要な一部屋を減らすことで明るいLDKへと変えた。
各居室には室内窓を設け、光と風が抜ける過ごしやすい空間となるようにプランニングした。