HOME

匠 基本情報
  •  種別
  • 部分リノベーション
  •  プロジェクト
  • H邸
  •  所在
  • 東京都世田谷区
  •  面積
  • 57.00u
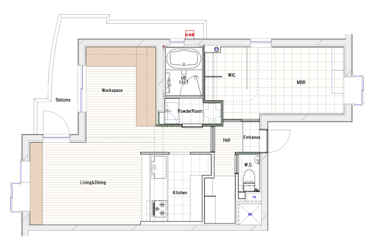
間取り図
サムネイル01
サムネイル01
サムネイル01
サムネイル01
サムネイル01
サムネイル01
サムネイル01

SOHO

いままで自宅と事務所を分けていたが、今回自宅をリノベーションしてSOHOとすることとなった。
事務所スペースとリビングには建具などで区切りは設けずあくまで自宅の一部で仕事をするというスタイルとした。

グラフィックデザインの仕事をされている施主の遊び心がいたるところにあふれている。
施工事例一覧