HOME

匠 基本情報
  •  種別
  • フルリノベーション
  •  プロジェクト
  • S邸
  •  所在
  • 神奈川県川崎市
  •  面積
  • 95.90u
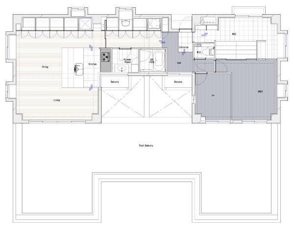
間取り図
サムネイル01
サムネイル01
サムネイル01
サムネイル01
サムネイル01
サムネイル01
サムネイル01
サムネイル01
サムネイル01
サムネイル01
サムネイル01
サムネイル01
サムネイル01
サムネイル01
サムネイル01
サムネイル01
サムネイル01
丘陵地にある専有面積と同等の広さのルーフバルコニーを持つマンションの最上階をリノベーションした。

リビングとほぼ同じ高さでバルコニーにウッドデッキを設置することでリビングとの一体感を演出し広がりを感じる空間とした。

玄関からリビングへつながる廊下は1面をすべて収納とし洗濯機から冷蔵庫、スロップシンクなどをすべて隠して収納している。
また、趣味であるアクアリウムの水槽を設置することも事前に計画しており、壁面にフラットで納まるように設計している。

洗面所とUBは北面から南面に移動し自然光を取り入れあかるい水廻りとしている。
寝室とウォークインクローゼットを結ぶ一角には作り付けのデスクを設け、書斎としても鏡台としても使えるように配慮している。
ウォークインクローゼットは玄関からも直接アクセスでき、身支度を整えてそのまま外出できるようになっている。



関連リンク(別サイト)
リノベりす ”アイランドキッチンがLDKの主役!壁面収納でスッキリ暮らすマンションリノベーション”
施工事例一覧