|
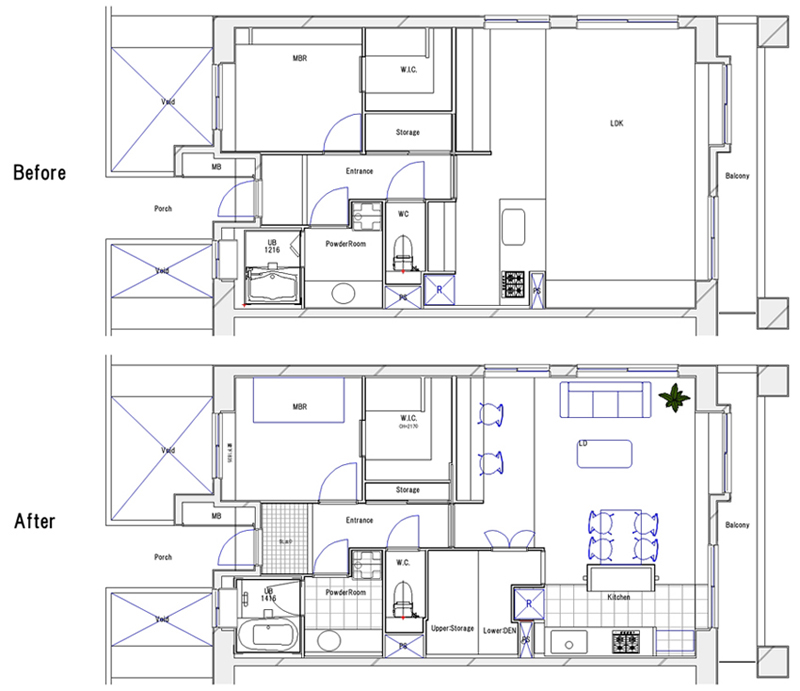
12年前に一度フルリノベーションを行った物件を良いところを残しつつ要望に沿った形へと部分リノベーションを行った。 ダメージ加工を施した材やクラフト感のある材を使用し、既存を利用する部位と新規で作る部位が違和感なくまとまるように配慮した。 またDIYが趣味の奥様によって手を加える余地を残す計画とした。 その後、訪問させていただくたびに新しい発見と驚きを与えてくれる変化し続ける家となった。 関連リンク(別サイト) リノベりす ”既存を生かしたリノベーションで、グレイッシュで絵になる住まいに。” |
|
12年前に一度フルリノベーションを行った物件を良いところを残しつつ要望に沿った形へと部分リノベーションを行った。 ダメージ加工を施した材やクラフト感のある材を使用し、既存を利用する部位と新規で作る部位が違和感なくまとまるように配慮した。 またDIYが趣味の奥様によって手を加える余地を残す計画とした。 その後、訪問させていただくたびに新しい発見と驚きを与えてくれる変化し続ける家となった。 関連リンク(別サイト) リノベりす ”既存を生かしたリノベーションで、グレイッシュで絵になる住まいに。” |