|
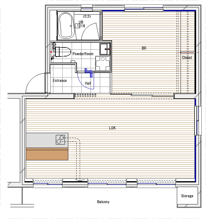
50代のご夫婦の為のリノベーションを計画した。 築も古く開口部などの高さも当時の平均身長に合わせているため現在の建物と比べて低く、1mmも無駄にできない案件であった。玄関とホールには段差を設けず境をあいまいにし床の高さを上げないことで有効な高さを確保することでバリアフリー化にもつながった。 キッチンは当初リビングへの対面式を希望されていたが夫婦二人で暮らす家というコンセプトからあえてコンパクトにキッチンとダイニングスペースをまとめ、リビングエリアを大きくとる計画を提案した。 寝室の収納にはあえて建具を設けずロールカーテンで代用することで引き代のない全開放できるようにすることと収納内に湿気が籠らないように計画している。 また、あえてリビングは3枚の引き戸で常に玄関ホールか寝室のどちらかとつながるようにしてある。コストだけではなく空間として広く感じさせることを目的としている。 |
















