HOME

匠 基本情報
  •  種別
  • フルリノベーション
  •  プロジェクト
  • T邸
  •  所在
  • 東京都三鷹市
  •  面積
  • 54.68u
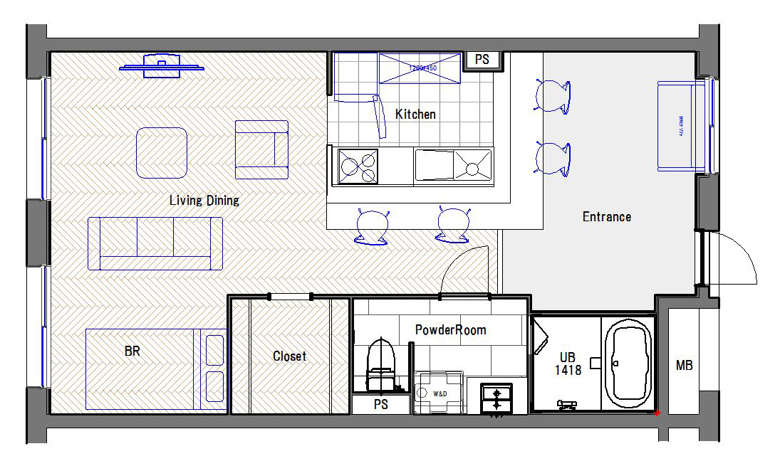
間取り図
サムネイル01
サムネイル01
サムネイル01
サムネイル01
サムネイル01
サムネイル01
サムネイル01
サムネイル01
サムネイル01
 当初厳しい予算から部分リフォームとしてのプロジェクトのスタートであったが、構造、躯体の状態、階数、位置、規約、すべてが厳しい予算をカバーできるポテンシャルを秘めた物件であった。
 施主のこれだけは絶対にやりたい事を守りつつ最終的にはフルリノベーションを実現する事が出来た。

 躯体の状態を生かして既存クロスを削ぎ落とし、仕上げを施さずにそのままの仕上げとした天井と壁。プレキャストコンクリートのスラブにはリブがあり天井に良いアクセントを生んだ。
 数少ない施主の要望であったブリックタイルで囲われたキッチンについては男の厨房らしく業務用を設置した。
 床は玄関周りに広めに土間を設け、残りのスペースには最大のこだわりであるヘリンボーンのフローリングを敷き詰めた。
 それぞれの用途をもつスペースを確保しながらも極力壁を作らず、置き家具で仕切るなどすることで一つなぎの開放的な空間となった。


後日譚
 ダイニングにあたるスペースには友人が多く訪れるようにとカウンターを大きくとったおかげか毎週末のように人が訪れ賑わっているという。
 先日とうとう近隣の方に店舗と認識されている事が判明した。



関連リンク(別サイト)
リノベりす ”思いもよらぬ魅力の躯体を生かし、ラフな素材が彩るリノベーション”
施工事例一覧